
生物質鍋爐介紹
生物質鍋爐燃料來源廣泛,是可再生的綠色能源,它幾乎不含硫份、灰分少,其生長過程能吸收燃燒過程產生的全部CO2,實現CO2零排放。生物質能源將逐步代替煤炭,成為主要能源之一。生物質燃料包括秸稈、木枝條、竹木加工廢料、糧食殼皮、果殼、糖渣、油渣等。按其形狀尺寸可劃分為屑(≤3mm)、片(≤50mm)、條塊(>50mm)狀三種。
我公司自2003年開始,與國內知名高等院校聯合、吸收同行的技術,逐步開發生物質鍋爐,并在實踐運營中不斷加以改進,目前已形成成熟穩定的技術、產品得到廣泛應用。根據不同生物質的特性和形狀尺寸,我們已經研制開發了固定爐排、活動爐排、鏈條爐排及室燃四種燃燒方式,橫水管、單縱、雙縱三種本體結構,四大系列生物質燃料鍋爐。與燃煤鍋爐結構不同,我公司生物質燃料鍋爐的主要特點如下:通過在爐膛內設計布置的二次風,擾動煙氣動力工況,及時補充氧氣燃燼揮發份,提高熱效率并減少排放。合理設計保證對拱和后部爐排的保護,并避免產生爐膛周期性微爆。對于含水分廢料,增加預熱段長度、提供有效熱源加熱或直接投入熾熱煙氣高溫段。對于用氣量高峰負荷突出,或廢料中含膠水等易結焦成份,則在爐膛內布置大量受熱面予以解決。對于廢料中有塊、條、片、屑、粉多種狀態,設計多種送料方式和單一送料方式供用戶選擇。
與燃煤鍋爐相比,生物質燃料成本低廉,大幅降低運行費用。我公司可以針對用戶各種不同生物質燃料的使用要求進行單獨設計,為用戶提供優價值的產品。
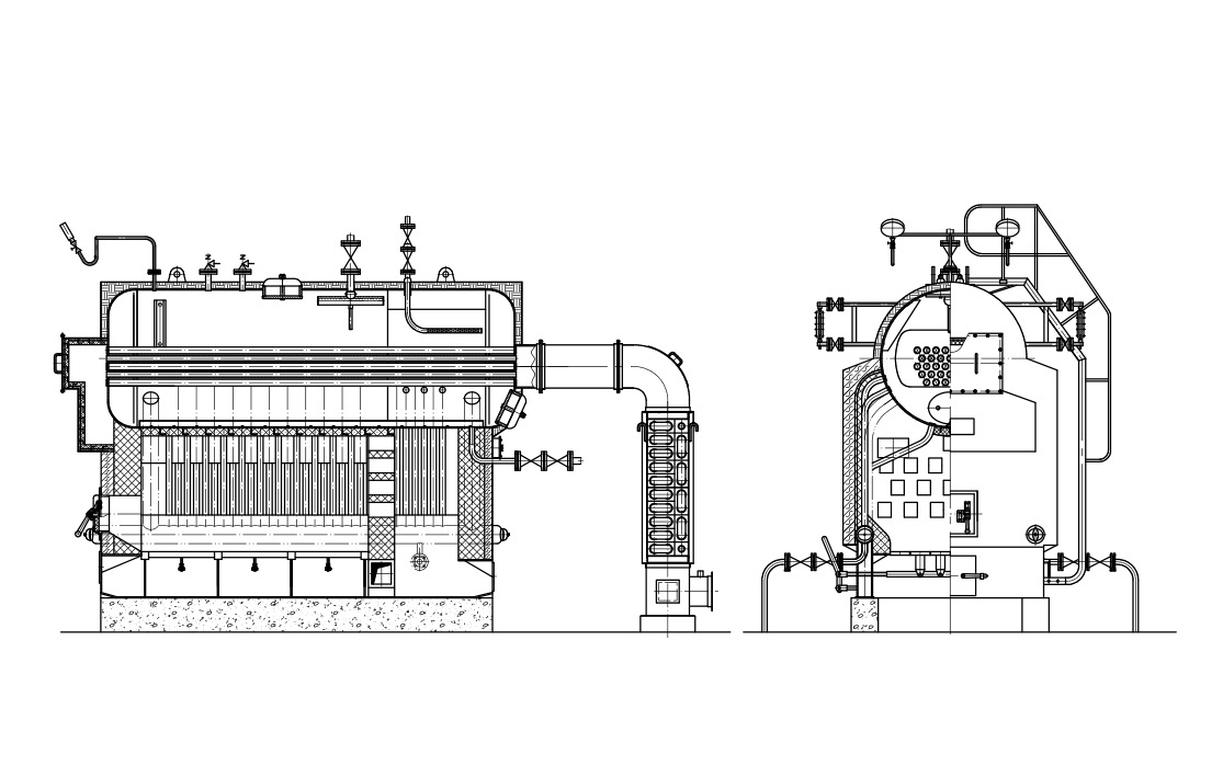
DZL系列生物質鏈條爐排蒸汽鍋爐介紹
一、適用燃料
本產品采用鏈條爐排,適用燃料為成型顆粒燃料,可加少量木條、木塊,也可與煤混燒。
一、結構特點
(1)采用拱型管板與螺紋煙管組成鍋筒,使鍋筒由準鋼性體變為準彈性體結構,取消了管板區的拉撐件,減少了應力。管板內煙管由兩回程改為單回程,解決了管板裂紋的難題。
(2)鍋筒下部由于布置了上升管排,消除了鍋筒底部的死水區,使泥渣不易沉積,鍋筒高溫區能得到良好的冷卻,預防了鍋筒下部鼓包。
(3)采用高效傳熱螺紋煙管,獲得了強化傳熱效果,達到鍋爐升溫、升壓快的特點,提高了鍋爐的熱效率。
(4)結構緊湊,與同類型鍋爐比較,外形尺寸小,節省鍋爐房基建投資。
(5)運行穩定、調整方便、出力足。
(6)采用螺紋煙管強化傳熱,提高了傳熱系數和熱效率,由于煙氣在管內有擾動作用。煙管內不易積灰,起到自清掃的作用。
(7)爐膛內的八字墻、出口煙窗部分均有一定降塵作用。使鍋爐的原始排塵濃度控制在標準以下,保證了鍋爐煙塵排放達到國家環保規定的指標。
(8)獨特的雙層二次風設計,改善了生物質燃料著火條件,采用了獨立風室,達到了合理布風,使爐膛內形成一個有利于燃燒的空氣動力場,使得燃燒溫度高、燃燒效率高。
生物質成型燃料說明
生物質成型燃料(Biomass pellet or Biomass Moulding Fuel,簡稱“BMF”)是采用農林廢棄物(如秸稈、木屑、甘蔗渣等)作為原材料,經過粉碎、烘干、混合、擠壓等工藝流程,制成的成型(如顆粒狀、棒狀、塊狀等)燃料。主要用于替代傳統化石能源(煤、油、天然氣),在專門研制開發的生物質燃燒機中直接燃燒的一種新型清潔燃料。
1、生物質成型燃料BMF的成分構成
BMF由可燃質、無機物和水分組成,主要含有碳(C)、氫(H)、氧(O)及少量的氮(N)、硫(S)等元素,并含有灰分和水分。各種成分構成如下:
▲碳:BMF燃料屬于低碳燃料,含碳量少(約為45-50%),尤其固定碳的含量低(約為16%),因此燃燒時碳排放低。
▲氫:BMF燃料含氫量多(約為5-8%),揮發分高(大于70%),因此燃燒特性好。
▲氧:BMF燃料含氧量高(約35-40%)。生物質燃料含氧量明顯地多于礦物質煤,它使得生物質燃料易于引燃。
▲硫:BMF燃料中含硫量少于0.08%,環保特性好,燃燒時不必設置煙氣脫硫裝置。
▲灰分:BMF顆粒燃料采主要用高品質的木質類生物質作為原料,灰分含量較低,只有1.5-3%。
2、生物質成型燃料BMF的熱值
生物質成型燃料BMF的熱值為15-19MJ/Kg,約2~3kgBMF替代1Kg燃料油或1立方天然氣。
3、生物質成型燃料BMF的特性
▲作為高品質的均質燃料,成型燃料在輸送、儲存、傳動和燃燒方面都可以自動控制,其方便程度可以與輕質燃油相媲美;
▲固體燃料,密度大,體積小,貯存安全方便,清潔干凈;
▲燃料揮發份高,著火容易,燃燒特性好,燃燼率高;
▲含硫量極低,僅為燃料油的1/20左右,不用采取任何脫硫脫硝措施即可達到環保要求;
▲含灰分低,常規除塵裝置即可滿足環保要求;
▲排放:生物質燃燒排放的CO2與其在生長過程中吸收的CO2相同,且替代了化石能源,減少了凈排放,根據《京都議定書》機制,生物質燃料CO2為生態排放。
(1)可實現模擬控速燃燒,不會產生爆燃;
(2)通過調整控速二次風量,可控制燃燒引燃速度;
(3)前后拱布置二次風,保證顆粒分解后的飛灰二次燃燒,燃燒效率高;
(4)采用鱗片式鏈條爐排,機械化進料。進料均勻,燃燒穩定,控制方便,具備不宜回火,機械清灰方便。
| 鍋爐型號 | DZL1-0.7-T DZL1-1.0-T DZL1-1.25-T | DZL2-0.7-T DZL2-1.0-T DZL2-1.25-T | DZL4-1.25-T DZL4-1.6-T | DZL6-1.25-T DZL6-1.6-T | DZL8-1.25-T DZL8-1.6-T | DZL10-1.25-T DZL10-1.6-T (上下組裝) | |
| 額定蒸發量(t/h) | 1 | 2 | 4 | 6 | 8 | 10 | |
| 額定蒸汽壓力(MPa) | 0.7/1.0/1.25 | 0.7/1.0/1.25 | 1.25/1.6 | 1.25/1.6 | 1.25/1.6 | 1.25/1.6 | |
| 額定蒸汽溫度(℃) | 170/184/194 | 170/184/194 | 194/204 | 194/204 | 194/204 | 194/204 | |
| 額定給水溫度(℃) | 20 | 20 | 20 | 20 | 20 | 20 | |
| 受熱面積(㎡) | 本體 | ~33 | ~50 | ~100 | ~170 | ~200 | ~250 |
| 省煤器 | 10.56/10.56/20.7 | 27.6 | 52.48/33.12 | 87.2 | 98 | 174 | |
| 爐排有效面積(㎡) | 2.22 | 4.1 | 5.85 | 7.95 | 9.75 | 10.77 | |
| 燃料種類 | 生物質顆粒成型燃料 | ||||||
| 鍋爐燃料消耗量(kg/h) | ~200 | ~400 | ~800 | ~1200 | ~1600 | ~2010 | |
| 排煙溫度(℃) | ~150 | ~150 | ~150 | ~150 | ~150 | ~150 | |
| 鍋爐熱效率(%) | ~82 | ~82 | ~82 | ||||

歡迎填寫以下表格,留下您的聯系電話、常用郵箱、設備使用地等信息,并盡可能詳細描述產品需求,我們將快速處理您提交的信息,確保您的購買咨詢得到及時、準確的回復。