
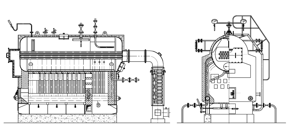
DZH生物質臥式蒸汽鍋爐,是一種臥式三回程水火管混合式鍋爐,在鍋筒內布置螺紋煙管。爐膛左右二側裝有光管水冷墻。采用輕型活動爐排、人工加料,配有鼓風機、引風機進行機械通風。該爐前后拱采用新型的節能技術爐拱。燃料撒落到爐排上,進入爐膛燃燒后,火焰經過后拱折射向上通過本體兩側燃燼室折向轉到前煙箱,再由前煙箱折回鍋內管束,通過后煙箱進入省煤器,然后由引風機抽引通過煙道至煙囪排向大氣。
1、鍋爐型式為臥式快裝鍋爐、工質自然循環。 該鍋爐換熱系統由鍋筒、左右集箱、水冷壁組成,主要受熱面有爐膛水冷壁、部分鍋筒和鍋筒內對流管束。
2、設計性能強勁: 該鍋爐主要受熱面管采用20#低中壓鍋爐用無縫鋼管制成,鍋筒采用鍋爐專用鋼板制成。左右集箱采用無縫鋼管制成。
3、鍋爐爐拱采用耐火混凝土搗制而成。后拱低而長,因此燃燒良好,兩翼煙道和側墻磚采用耐火材料燒結磚。鍋爐前墻、后墻采用通用耐火磚。
4、爐排配風合理,燃燒室較大,煤種適用性強。適應各類煙煤或無煙煤、混合煤。燃燒充分。由于高溫煙氣首先進入沉降室,再由兩側進入兩翼煙道、前煙箱,因而消煙除塵效果好。
5、水循環簡單,受壓部件結構合理,在保證水質的情下,完全可以安全運行。
6、燃燒設備為快裝爐排,燃燒設備在廠內制造安裝完畢,運輸至工地后直接安裝在地基上即可。具有結構合理、緊湊,鋼材耗量低,使鍋爐性能、重量、結構尺寸與國內同容量產品相比具有明顯的優勢性。
7、節能環保:采用新氣化燃燒技術,設置了氣化旋轉燃燒室,內置旋流二次配風,使燃料燃燒更加充分。
8、并采用高效傳熱元件-螺紋煙管,配以合理的煙氣流速,使鍋爐熱效率更高。熱效率高達85%以上。
9、鍋爐采用國家推廣的綠色可再生生物質木質顆粒燃料,CO2達到零排放,煙塵排放濃度小于50mg/m3,煙氣度黑小于林格曼I級,各項指標均達到國家一類地區環保標準。
10、運行費用低:由于鍋爐本身所使用的燃料木質生物質顆粒是屬于國家支持推廣的新型環保燃料,是一種可再生資源。具有熱值高,成本低,來源廣泛的特點。其運行成本僅是電鍋爐的四分之一,燃油(氣)鍋爐的二分之一以下。
11、自動化程度高:數字集成控制器,可按用戶設定自動控制器燃燒工況,操作簡單方便,自動點火,自動上料,自動清灰,燃氣鍋爐操作同等方便。 12、安全:采用高標準,高質量的輔機、附件和自動控制設備,保證鍋爐安全、穩定運行。 13、外觀新穎:鍋爐設計美觀大方。
| 項目/型號 | DZH0.5-0.7-T/DZH0.5-1.0-T | DZH1-0.7-T/DZH1-1.0-T/DZH1-1.25-T | DZH2-0.7-T/DZH2-1.0-T/DZH2-1.25-T | DZH4-1.25-T/DZH4-1.6-T | |
| 額定蒸發量(t/h) | 0.5 | 1 | 2 | 4 | |
| 額定蒸汽壓力(MPa) | 0.7/1.0 | 0.7/1.0/1.25 | 0.7/1.0/1.25 | 1.25/1.6 | |
| 額定蒸汽溫度(℃) | 170/184 | 170/184/194 | 170/184/194 | 194/204 | |
| 額定給水溫度(℃) | 20 | 20 | 20 | 20 | |
| 受熱面積(㎡) | 本體 | 21.31 | 33 | 50.8 | 71.5 |
| 省煤器 | 8.28 | 11 | 28.5 | 5.3 | |
| 爐排有效面積(㎡) | 1.25 | 2.1 | 3.36 | 5.2 | |
| 燃料種類 | 生物質顆粒、木塊、秸稈 | 生物質顆粒、木塊、秸稈 | 生物質顆粒、木塊、秸稈 | 生物質顆粒、木塊、秸稈 | |
| 鍋爐燃料消耗量(Kg/h) | 90 | 150 | 300 | 600 | |
| 排煙溫度(℃) | 120 | 120 | 120 | 125 | |
| 鍋爐熱效率(%) | 85% | 85% | 85% | 85% | |
| 最大運輸件重量(T) | 9.5 | 14 | 16 | 23 | |
| 最大運輸件尺寸/長*寬*高(mm) | 3628*2000*2650 | 4500*2200*2950 | 4900*2200*3300 | 5900*2400*3400 | |
DZH生物質臥式蒸汽鍋爐,是一種臥式三回程水火管混合式鍋爐,在鍋筒內布置一束螺紋煙管。爐膛左右二側裝有光管水冷墻。采用輕型活動爐排、人工加料,配有鼓風機、引風機進行機械通風。該爐前后拱采用新型的節能技術爐拱。燃料撒落到爐排上,進入爐膛燃燒后,火焰經過后拱折射向上通過本體兩側燃燼室折向轉到前煙箱,再由前煙箱折回鍋內管束,通過后煙箱進入省煤器,然后由引風機抽引通過煙道至煙囪排向大氣。

歡迎填寫以下表格,留下您的聯系電話、常用郵箱、設備使用地等信息,并盡可能詳細描述產品需求,我們將快速處理您提交的信息,確保您的購買咨詢得到及時、準確的回復。