
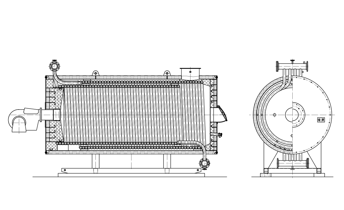
YY(Q)W系列燃油(氣)導熱有爐以油(氣)為燃料,以導熱油為介質,利用熱油輪回油泵強制介質進行液相輪回,將熱能輸送給用熱設備后再返回導熱油爐重新加熱,從而實現了在低壓力下獲得高工作溫度介質的功能,并且能對介質運行進行高精密控制。又因為鍋爐模塊可以整體安裝,運行維修便利,是一種安全、高效、節能的理想供熱設備。燃燒油(氣)有燃燒器點火后產生的高溫火焰進入內盤管內形成輻射受熱面,進過內盤爐管后部向前旋轉180℃進入內管、中管和外管的夾層區形成對流受熱面。然后在夾層的上部進入中管和外管的第二夾層區,最后在第二夾層區的后部經煙囪排入大氣。
1、液相循環供熱,無冷凝排放熱損失,供熱系統熱效率高。
2、獲得低壓高溫熱介質,供熱均勻,調節方便,可以滿足精確的工藝溫度的要求。
3、工作介質受熱及放熱和溫度升降對體積的變化,在系統內有補償技術措施。
4、循環供熱前有嚴格控制工作介質內空氣、水分及其他低揮發物含量的技術措施。
5、大直徑燃燒室:鍋爐燃燒室由大直徑盤管組成,燃料燃燒空間足,燃燒完全,熱效率高。
6、盤管設計:爐體內、外螺旋盤管采用多頭、小管徑鋼管制成,盤管的熱膨脹性能好、應力低、安全可靠。
7、流程設計:煙氣三回程,介質流經內外盤管,流速均勻,運行安全、穩定。
8、出力足:受熱面布置合理,面積大,傳熱效果好,效率高、出力穩定充足。
9、煙箱密封獨特:爐蓋采用整體結構,多級迷宮式密封,密封工藝和材料特制,壓縮性好,完全隔阻煙氣的泄露,可重復使用。
10、自動控制措施完善:(1)精確控制出油溫度;(2)對介質溫度、壓力及超煙等設置多重控制保護,確保運行安全可靠。
11、自動控制水平成熟:鍋爐控制器采用西門子/德力西電器元件,性能可靠。實現人機對話和遠程控制功能。
| 數據型號參數 | YY(Q)W-300Y(Q)(25) | YY(Q)W-350Y(Q)(35) | YY(Q)W-600Y(Q)(50) | YY(Q)W-900Y(Q)(75) | YY(Q)W-1200Y(Q)(100) | YY(Q)W-1500Y(Q)(125) | YY(Q)W-1800Y(Q)(150) | YY(Q)W-2400Y(Q)(200) | YY(Q)W-3000Y(Q)(250) | YY(Q)W-3500Y(Q)(300) | YY(Q)W-4000Y(Q)(350) | YY(Q)W-4600Y(Q)(400) | YY(Q)W-6000Y(Q)(500) | YY(Q)W-7100Y(Q)(600) | |
| 額定熱功率(KW) | 300 | 350 | 600 | 900 | 1200 | 1500 | 1800 | 2400 | 3000 | 3500 | 4000 | 4600 | 6000 | 7100 | |
| 熱效率(%) | >90 | ||||||||||||||
| 設計工作壓力(MPa) | 1.0 | 1.0 | 1.0 | 1.0 | 1.0 | 1.0 | 1.0 | 1.0 | 1.0 | 1.0 | 1.0 | 1.1 | 1.1 | 1.1 | |
| 介質最高溫度(℃) | 320 | ||||||||||||||
| 爐內容油量(m3) | 0.21 | 0.25 | 0.28 | 0.44 | 0.7 | 1.0 | 1.48 | 2.2 | 3.5 | 4.7 | 5.7 | 7.2 | 8.5 | 9.5 | |
| 循環油量(m3/h) | 40 | 40 | 60 | 80 | 100 | 100 | 150 | 200 | 200 | 250 | 250 | 250 | 300 | 300 | |
| 配管連接口徑(DN) | 100 | 100 | 100 | 100 | 125 | 125 | 125 | 150 | 150 | 200 | 200 | 200 | 250 | 250 | |
| 全套系統裝機容量(KW) | 17 | 17 | 27 | 40 | 40 | 42 | 45 | 70 | 70 | 85 | 85 | 85 | 100 | 100 | |
| 外型尺寸(mm) | A | 1016 | 1016 | 1216 | 1416 | 1716 | 1716 | 2000 | 2000 | 2320 | 2500 | 2520 | 3080 | 3220 | 3400 |
| L1 | 2050 | 2350 | 3050 | 3290 | 3300 | 3900 | 4400 | 5100 | 5300 | 6000 | 6200 | 6400 | 8000 | 8400 | |
| L2 | 2650 | 3000 | 3550 | 3800 | 4065 | 4665 | 4900 | 5900 | 6200 | 6900 | 7200 | 7400 | 9000 | 9400 | |
| L3 | 300 | 300 | 250 | 250 | 300 | 300 | 350 | 350 | 350 | 400 | 400 | 450 | 450 | 450 | |
| L4 | 500 | 500 | 350 | 370 | 600 | 620 | 400 | 650 | 700 | 700 | 700 | 750 | 750 | 750 | |
| H1 | 900 | 900900 | 1000 | 1350 | 1350 | 1500 | 1500 | 1700 | 1700 | 1700 | 1800 | 2000 | 2400 | 2600 | |
| H2 | 750 | 750 | 920 | 1010 | 1100 | 1100 | 1200 | 1300 | 1450 | 1450 | 1550 | 1760 | 1800 | 1852 | |
| H3 | 700 | 700 | 820 | 930 | 1100 | 1050 | 1250 | 1200 | 1400 | 1400 | 1500 | 1700 | 1800 | 1900 | |
| H4 | 650 | 650 | 810 | 900 | 950 | 950 | 1100 | 1100 | 1300 | 1300 | 1400 | 1600 | 1800 | 1890 | |
| 設備總重(Kg) | 1750 | 1950 | 3580 | 4290 | 4900 | 5450 | 6550 | 11400 | 14600 | 16600 | 25000 | 28200 | 30760 | 35340 | |
| 基本尺寸(mm) | 890 | 1190 | 1750 | 1770 | 2000 | 2470 | 2620 | 3700 | 3900 | 4600 | 4820 | 5000 | 6600 | 7000 | |
| 1150 | 1450 | 2000 | 2100 | 2300 | 2750 | 3450 | 4000 | 4200 | 4900 | 5100 | 5300 | 6900 | 7300 | ||
| 700 | 700 | 720 | 880 | 1150 | 1150 | 1120 | 1300 | 1500 | 1500 | 1600 | 1800 | 2200 | 2400 | ||
| 1100 | 1100 | 900 | 1100 | 1550 | 1510 | 1600 | 1700 | 1900 | 1900 | 2000 | 2200 | 2600 | 2500 | ||
| 450 | 450 | 450 | 450 | 450 | 450 | 450 | 450 | 450 | 450 | 450 | 450 | 450 | 450 | ||

歡迎填寫以下表格,留下您的聯系電話、常用郵箱、設備使用地等信息,并盡可能詳細描述產品需求,我們將快速處理您提交的信息,確保您的購買咨詢得到及時、準確的回復。